Новое
Покраска домов
Внутренняя отделка
Покрасочный цех
Столярка
Строительство
Крепежи
Термодревесина
Производство
Склад
Внешняя отделка
Терраса

Лиственница для прочности, сосна для эстетики: как мы создали лестницу, оптимальную по цене и качеству

Задача от клиента:

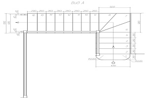
Клиент, владелец загородного дома в живописной Курортной усадьбе Ленинградской области, обратился в нашу компанию "Лесобиржа-Спб" с конкретной и тщательно продуманной задачей. Ему требовалась межэтажная лестница, которая бы не только обеспечивала удобный и безопасный переход между первым и вторым этажами, но и гармонично вписывалась в интерьер его деревянного дома. Основные требования включали в себя установку двухмаршевой конструкции с функциональным забежным блоком, что позволяло эффективно использовать пространство и создать плавный подъем. Особое внимание клиент уделил эстетике: необходимо было предусмотреть элегантную стартовую ступень, которая задавала бы общий тон всему изделию. Также важным аспектом было комплексное ограждение – как самой лестницы, так и проема на втором этаже, для обеспечения максимальной безопасности всех жильцов. И, конечно же, финишное покрытие играло ключевую роль: клиент настаивал на нанесении лака в три слоя, чтобы не только защитить древесину от износа и влаги, но и подчеркнуть ее естественную красоту, придать поверхности благородный глянцевый вид и обеспечить долговечность конструкции. Он ожидал решения, которое сочетало бы в себе надежность, красоту и оптимальную стоимость, полностью соответствуя его представлениям об идеальной лестнице для его загородного дома. Основные характеристики объекта:
Ступеней
Сроки, дней
Использовали краску Renner
Человек в бригаде

Галерея объекта

Расчёт стоимости

Наименование работ
объём работ
цена
Проектные работы
-
+ 20 000
Доставка
-
+ 8 000
Работа
-
+ 130 750
Материал
-
+ 110 945
Покраска
-
+ 40 578
Итого: 310 273

Описание проекта

Владение двух- или трехэтажным домом предполагает установку в нем межэтажной лестницы. Эта конструкция — не просто функциональный элемент, а центральная ось интерьера, объединяющая пространства и задающая тон всему дизайну. Она должна быть не только надежной и безопасной, но и безупречно вписываться в общий стиль дома, при этом оставаясь эстетически привлекательной на долгие годы. Дерево – материал, который десятилетиями остается на пике популярности в строительстве и отделке. Его востребованность объясняется множеством преимуществ: оно экологично, долговечно, легко поддается обработке, а главное – наделено уникальным природным рисунком, который невозможно повторить на синтетических или композитных поверхностях. Это придает каждому изделию из дерева неповторимый характер и теплоту.

Когда клиент в Лесобирже-Спб планирует монтаж лестницы из дерева в своем доме, он, безусловно, ищет наиболее выгодный вариант, который гармонично сочетает в себе качество, эстетику и разумную стоимость. Лестница из цельной лиственницы, без сомнения, выглядит респектабельно и обладает выдающимися эксплуатационными характеристиками, но этот пиломатериал относится к премиальному сегменту. Наши специалисты всегда готовы предложить оптимальные решения, и в данном случае идеальным выбором стала комбинированная лестница из лиственницы и сосны, выполненная нами для клиента в живописной Курортной усадьбе Ленинградской области. Это решение позволило существенно оптимизировать бюджет проекта, не жертвуя при этом ни качеством, ни внешним видом.

Комбинированная лестница от Лесобиржи-Спб – оригинальное и выгодное приобретение

Опыт Лесобиржи-Спб показывает, что при грамотной комбинации различных пород древесины достигается оптимальное сочетание эстетики, функциональности и долговечности. Симбиоз лиственницы и сосны в конструкции межэтажной лестницы является ярким примером такого подхода. Лиственница, известная своей плотностью и высокой устойчивостью к истиранию, влаге и механическим повреждениям, идеально подходит для изготовления несущих элементов и ступеней – тех частей, которые подвергаются максимальным нагрузкам в процессе ежедневной эксплуатации. Ее выразительная текстура и благородные оттенки от светло-желтого до красновато-коричневого придают конструкции роскошный вид.

Сосна, в свою очередь, является более мягким и доступным материалом. Это обуславливает ее невысокую цену и делает идеальным выбором для элементов, не испытывающих значительных механических нагрузок. В комбинированной лестнице сосна прекрасно подходит для поручней, балясин, декоративных вставок, подступенников, межлестничных перегородок и столбиков ограждения. При этом, благодаря современным технологиям обработки и качественным защитным покрытиям, сосновые элементы приобретают дополнительную прочность и долговечность. Такое разделение ролей позволяет значительно снизить общую стоимость конструкции, сохранив при этом ее высокую эстетичность и добившись оптимальных эксплуатационных свойств для каждого элемента.

Преимущества лиственницы, использованной в проекте:

  1. Исключительная долговечность: Древесина лиственницы отличается высокой плотностью и твердостью, что делает ее устойчивой к износу, ударам и царапинам. Это особенно важно для ступеней и несущих элементов лестницы, которые подвергаются постоянным нагрузкам.
  2. Повышенная влагостойкость: Природные смолы в составе лиственницы обеспечивают ее устойчивость к гниению, плесени и грибкам. Это делает материал идеальным для использования в условиях повышенной влажности, характерных для климата Санкт-Петербурга и Ленинградской области.
  3. Эстетическая привлекательность: Широкое разнообразие естественных оттенков – от золотисто-медового до насыщенного бурого – и выразительный рисунок годовых колец на лиственничном щите делают каждую ступень произведением искусства. Это дает практически неограниченные возможности для дизайна и позволяет гармонично вписать лестницу в любой интерьер.
  4. Экологичность и безопасность: Лиственница – абсолютно натуральный и гипоаллергенный материал, не выделяющий вредных веществ. Она создает благоприятный микроклимат в помещении.
  5. Повышенная прочность: Благодаря своей структуре, лиственница со временем становится только прочнее, что гарантирует долгие годы безупречной службы лестницы.

Таким образом, недостатки сосны в плане прочности и износостойкости компенсируются в конструкции выдающимися преимуществами лиственницы, а стоимость готовой лестницы становится значительно ниже за счет умного использования сосновых элементов там, где это допустимо и целесообразно. Это позволило нам создать не только красивую и надежную, но и экономически выгодную лестницу, полностью соответствующую пожеланиям нашего клиента.

Проектирование и монтаж комбинированной лестницы в Ленинградской области

Монтаж лестницы из дерева на объекте – это сложный процесс, требующий высокой квалификации, точности и соблюдения всех строительных норм. От правильности проектирования и установки зависит не только безопасность всех обитателей дома, но и долговечность всей конструкции, а также комфорт в помещениях нижнего этажа. В Лесобирже-Спб мы подходим к каждому проекту индивидуально, начиная с детальных замеров на объекте в Курортной усадьбе и создания уникального 3D-проекта. Наши инженеры и дизайнеры тщательно прорабатывают каждый элемент, учитывая архитектурные особенности дома, стилистические предпочтения заказчика и эргономические требования.

В данном проекте была предусмотрена двухмаршевая лестница с элегантным забежным блоком, которая идеально вписалась в отведенное пространство. Особое внимание было уделено стартовой ступени, которая не только является первым шагом, но и задает общий тон всему восхождению. Ограждение лестницы и проема на втором этаже было выполнено в едином стиле, обеспечивая максимальную безопасность и создавая завершенный архитектурный ансамбль. Все элементы были изготовлены в производственных цехах Лесобиржи-Спб, где установлено современное высокотехнологичное оборудование. Это позволяет нам гарантировать высочайшее качество обработки каждого элемента и точное соответствие проектной документации. В качестве сырья мы используем только хорошо высушенный пиломатериал различной градации, тщательно отобранный и подготовленный нашими мастерами.

Финишное покрытие лестницы – это не просто эстетический штрих, а важный защитный слой, продлевающий срок службы древесины. Согласно пожеланиям клиента, наши мастера нанесли лак в три слоя, что обеспечило надежную защиту от влаги, ультрафиолета и механических повреждений. Такое покрытие не только подчеркнуло естественную красоту лиственницы и сосны, но и придало поверхности дополнительную износостойкость и глянцевый блеск. После завершения монтажных работ, которые были выполнены точно в срок и с минимальным дискомфортом для клиента, наши специалисты провели тщательную проверку всех узлов и соединений, убедившись в идеальной прочности и безопасности конструкции. Клиент остался очень доволен результатом, подчеркнув, что лестница стала настоящим украшением его дома.

Компания Лесобиржа-Спб предлагает полный комплекс услуг по монтажу комбинированной лестницы "под ключ" в Санкт-Петербурге и Ленинградской области. Это подразумевает все этапы работ: от разработки индивидуального проекта и изготовления всех элементов по точным размерам, до доставки на объект, профессиональной установки и финишной отделки. Мы работаем с частными застройщиками и строительными фирмами, предлагая высококачественный пиломатериал и безупречный сервис. Обращаясь к нам, вы можете быть уверены в получении эксклюзивной, надежной и долговечной лестницы, которая будет радовать вас и ваших близких многие годы, становясь гордостью вашего дома.

Комбинация лиственницы и сосны, реализованная Лесобиржей-Спб в Курортной усадьбе, показала себя идеально. Этот симбиоз позволил создать эстетичную, надежную лестницу, значительно снизив стоимость. Мы достигли оптимальных эксплуатационных свойств, полностью удовлетворив ожидания клиента и подтвердив свой профессионализм.
img
Заикин Андрей Вячеславович Директор цветных превращений и вагонки с характером

Используемые материалы

Хотите так же?
Оставьте заявку
на бесплатную консультацию
Средняя стоимость проекта: 310 273
Обращайтесь к нам по телефону В МСК: +7 495 104-41-21 В СПБ: +7 812 602-41-92
Лестница из лиственницы и сосны с забежным блоком и трёхслойным лаковым покрытием | ООО "ЛесоБиржа" - СПб. Москва