Новое
Покраска домов
Внутренняя отделка
Покрасочный цех
Столярка
Строительство
Крепежи
Термодревесина
Производство
Склад
Внешняя отделка
Терраса

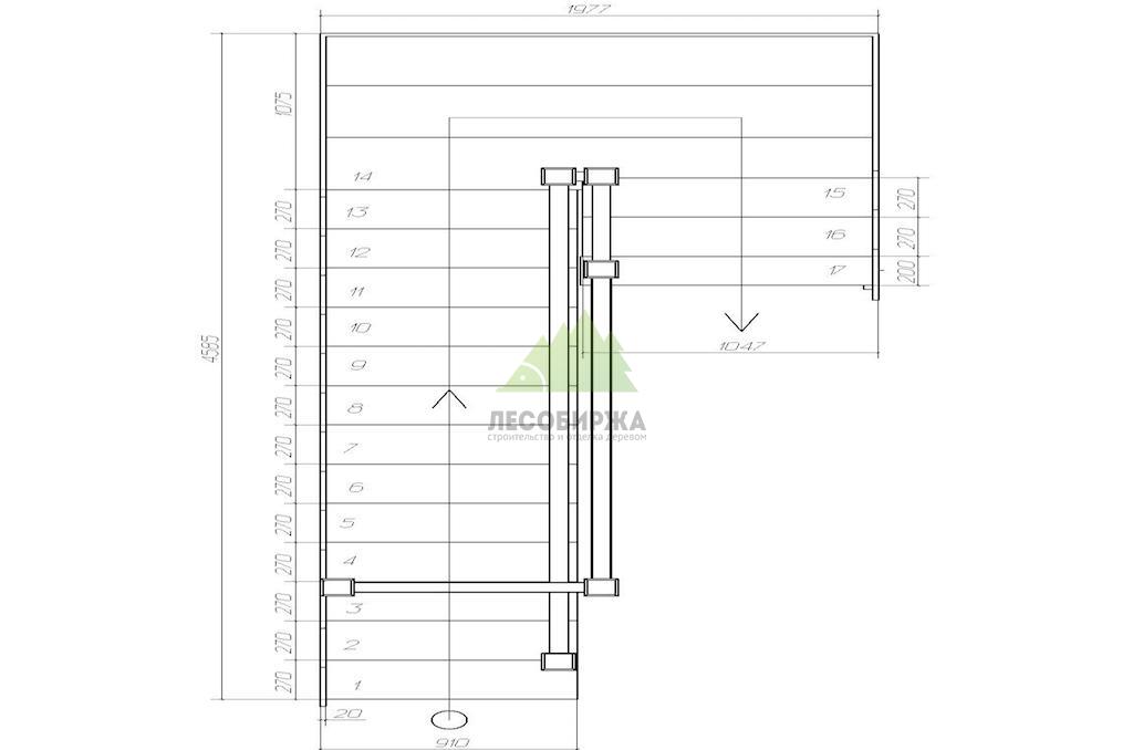
Лесной Уют: светлая лестница из сосны — уют и надежность для вашего дома

Задача от клиента:

Владельцы загородного дома в живописном коттеджном поселке Лесной Уют, расположенном в Ленинградской области, обратились в Лесобиржу-Спб с четким запросом: создать и установить межэтажную лестницу, которая станет не просто функциональным элементом, но и гармоничным дополнением интерьера их деревянного жилища. Ключевым требованием было изготовление надежной и эстетичной двухмаршевой конструкции с удобной площадкой, идеально вписывающейся в пространство между этажами. В качестве основного материала заказчик выбрал высококачественный мебельный щит из сосны сорта А/А, известный своей прочностью и выразительной текстурой. Особое внимание было уделено финишной обработке: лестница должна была быть покрыта бесцветным лаком, чтобы максимально сохранить естественный светлый оттенок и уникальный рисунок древесины, одновременно обеспечивая долговечность и легкость в уходе. Клиент стремился получить решение, которое объединит в себе комфорт, безопасность и безупречный внешний вид, соответствующий стилистике их дома. Основные характеристики объекта:
Ступеней
Сроки, дней
Использовали краску Sayerlack
Человек в бригаде

Галерея объекта

Расчёт стоимости

Наименование работ
объём работ
цена
Изготовление лестницы
-
+ 95 550
Покраска лестницы
-
+ 29 250
Монтаж лестницы на объекте
-
+ 29 900
Проектирование
-
+ 15 000
Материалы
-
+ 46 657
Расходные материалы
-
+ 6 500
Итого: 222 857

Описание проекта

В сердце Ленинградской области, в уютном коттеджном поселке Лесной Уют, команда Лесобиржи-Спб с гордостью завершила проект по созданию и установке уникальной двухмаршевой межэтажной лестницы. Наш клиент, владелец прекрасного деревянного дома, мечтал о лестнице, которая не только обеспечит комфортный и безопасный подъем на второй этаж, но и станет настоящим украшением интерьера, гармонично дополняя естественную красоту натурального дерева.

Задача была ясна: требовалась конструкция, выполненная с учетом всех особенностей деревянного домостроения, способная выдерживать интенсивную эксплуатацию и сохранять свой первозданный вид на долгие годы. Для реализации этого замысла был выбран высококачественный мебельный щит из сосны сорта А/А. Этот материал ценится за свою стабильность, однородность текстуры и прочность, что делает его идеальным решением для изготовления лестниц. Финальное покрытие бесцветным лаком позволило максимально сохранить естественный, светлый оттенок сосны и ее уникальный рисунок, одновременно обеспечивая надежную защиту от истирания и влаги.

Комплексный подход Лесобиржи-Спб: от идеи до воплощения

В Лесобирже-Спб мы верим, что каждая лестница – это не просто набор ступеней, а продуманное инженерное решение и произведение столярного искусства. Наш подход к работе начинается с детального изучения потребностей клиента и архитектурных особенностей его дома. В случае с объектом в Лесном Уюте, наши специалисты внимательно выслушали пожелания заказчика, провели все необходимые замеры и предложили оптимальное решение, которое учитывало как эстетические предпочтения, так и требования к безопасности и функциональности.

Проектирование двухмаршевой лестницы с площадкой – это сложный процесс, требующий глубоких знаний в области столярного дела и конструирования. Наши инженеры и дизайнеры разработали подробный 3D-проект, который позволил клиенту еще на этапе планирования увидеть будущую лестницу во всей ее красе и убедиться в правильности выбранных решений. Особое внимание было уделено расчетам нагрузок, эргономике ступеней и перил, а также методам крепления, чтобы обеспечить максимальную прочность и устойчивость конструкции.

Производство в собственном столярном цехе Лесобиржи-Спб

Изготовление всех элементов лестницы производилось в нашем современном столярном цехе в Санкт-Петербурге. Мы располагаем передовым оборудованием, которое позволяет с высочайшей точностью обрабатывать древесину и создавать детали любой сложности. Мебельный щит из сосны сорта А/А прошел тщательную подготовку: отбор по качеству, распил, фрезеровка и многоступенчатая шлифовка. Каждый элемент – ступени, подступенки, тетивы, балясины и поручни – был изготовлен с максимальной аккуратностью и вниманием к деталям. Это гарантирует идеальную геометрию и гладкость всех поверхностей.

Особое значение мы придаем финишной отделке. Несмотря на то, что сосновый пиломатериал является более доступным вариантом по сравнению с некоторыми элитными породами, профессиональная обработка и покрытие бесцветным лаком придают лестнице благородный и завершенный вид. Лак, выбранный для этого проекта, не только защищает древесину от внешних воздействий, но и подчеркивает ее естественную красоту, создавая легкий глянцевый эффект и делая поверхность приятной на ощупь. Качество лакокрасочного покрытия влияет на долговечность и легкость ухода за лестницей, а также обеспечивает дополнительную защиту от скольжения при должном выборе состава.

Профессиональный монтаж в Лесном Уюте

Монтаж лестницы в деревянном доме требует особого мастерства. Наши бригады монтажников обладают обширным опытом работы с деревянными конструкциями и знают все нюансы установки в домах из бруса или бревна, которые могут "дышать" и со временем давать незначительную усадку. В Лесном Уюте установка двухмаршевой лестницы с площадкой была выполнена оперативно и аккуратно. Мы уделили внимание каждой мелочи: точности подгонки элементов, надежности креплений, выравниванию по уровню и обеспечению плавного перехода между маршами. Результатом стала идеально ровная, прочная и абсолютно безопасная конструкция.

Преимущества лестницы от Лесобиржи-Спб:

  1. Надежность и прочность: Использование высококачественного мебельного щита из сосны сорта А/А и профессиональные расчеты гарантируют исключительную прочность и долговечность конструкции. Наши лестницы спроектированы выдерживать значительные нагрузки на протяжении десятилетий.
  2. Долговечность: Благодаря применению проверенных технологий сушки древесины и защитных покрытий, лестница не подвержена деформации, растрескиванию и воздействию влаги. Она сохранит свой первозданный вид на многие годы даже при интенсивной эксплуатации.
  3. Экологичность: Сосна – это природный, экологически чистый материал, который создает благоприятный микроклимат в доме. Покрытие бесцветным лаком на водной основе или с низким содержанием летучих органических соединений дополнительно подчеркивает заботу о здоровье жильцов.
  4. Безопасность: Мы уделяем первостепенное внимание безопасности. Оптимальные размеры ступеней, надежные перила, отсутствие скольжения на покрытой лаком поверхности и прочная фиксация всех элементов делают передвижение по лестнице комфортным и безопасным для всех членов семьи, включая детей и пожилых людей.
  5. Функциональность: Двухмаршевая конструкция с просторной площадкой обеспечивает удобство подъема и спуска, позволяя комфортно перемещаться с одного этажа на другой, не ощущая усталости. Площадка служит отличным местом для отдыха или размещения декоративных элементов.
  6. Эстетическая привлекательность: Естественная красота сосны, подчеркнутая бесцветным лаком, придает лестнице элегантный и вневременной вид. Она легко вписывается в различные интерьерные стили – от классического и кантри до современного – и становится центральным элементом декора.
  7. Простота в эксплуатации и уходе: Поверхность, покрытая лаком, легко очищается от пыли и загрязнений, не требует специального ухода и сохраняет свой блеск без дополнительных усилий.
  8. Оптимальное соотношение "цена-качество": Выбирая сосну, вы получаете превосходное качество и эстетику по разумной цене, что делает профессионально изготовленную лестницу доступной инвестицией в комфорт и красоту вашего дома.

Лестница как часть интерьера

Лестница, изготовленная Лесобиржей-Спб для объекта в Лесном Уюте, стала не просто функциональным элементом, но и воплощением идеи комфорта и гармонии. Ее светлый оттенок и естественная текстура сосны прекрасно сочетаются с деревянной отделкой дома, создавая единое, уютное пространство. Двухмаршевая конструкция с площадкой не выглядит громоздкой даже в условиях ограниченного пространства, благодаря тщательно продуманным пропорциям и легкости форм. Она приглашает подняться на второй этаж, предлагая приятный визуальный опыт и ощущение надежности под ногами.

Этот проект в Лесном Уюте демонстрирует нашу способность реализовывать самые амбициозные задачи, предоставляя клиентам решения, которые превосходят их ожидания. Мы гордимся тем, что каждая лестница, созданная нами, приносит радость и комфорт в дома жителей Санкт-Петербурга и Ленинградской области, подтверждая репутацию Лесобиржи-Спб как надежного партнера в строительстве и отделке деревянных домов.

Если вы ищете идеальное решение для вашего дома, будь то новая лестница, обшивка, ремонт или другие внутренние и наружные работы с деревом, Лесобиржа-Спб готова предложить вам свой опыт, мастерство и индивидуальный подход. Мы работаем для того, чтобы ваш дом стал еще уютнее, красивее и функциональнее.

Этот проект стал отличным примером того, как тщательное проектирование и мастерство наших плотников позволяют воплощать мечты клиентов в реальность. Мы создали не просто лестницу, а центральный элемент интерьера, гарантирующий безопасность, долговечность и эстетическое наслаждение. Использование мебельного щита А/А из сосны и покрытие бесцветным лаком подчеркнули естественную красоту дерева и обеспечили выдающиеся эксплуатационные характеристики.
img
Громов Александр Николаевич Верховный древесный мудрец и главный шаман российского леса

Используемые материалы

Хотите так же?
Оставьте заявку
на бесплатную консультацию
Средняя стоимость проекта: 222 857
Обращайтесь к нам по телефону В МСК: +7 495 104-41-21 В СПБ: +7 812 602-41-92
Межэтажная лестница из мебельного щита сосны сорта А/А с бесцветным покрытием | ООО "ЛесоБиржа" - СПб. Москва